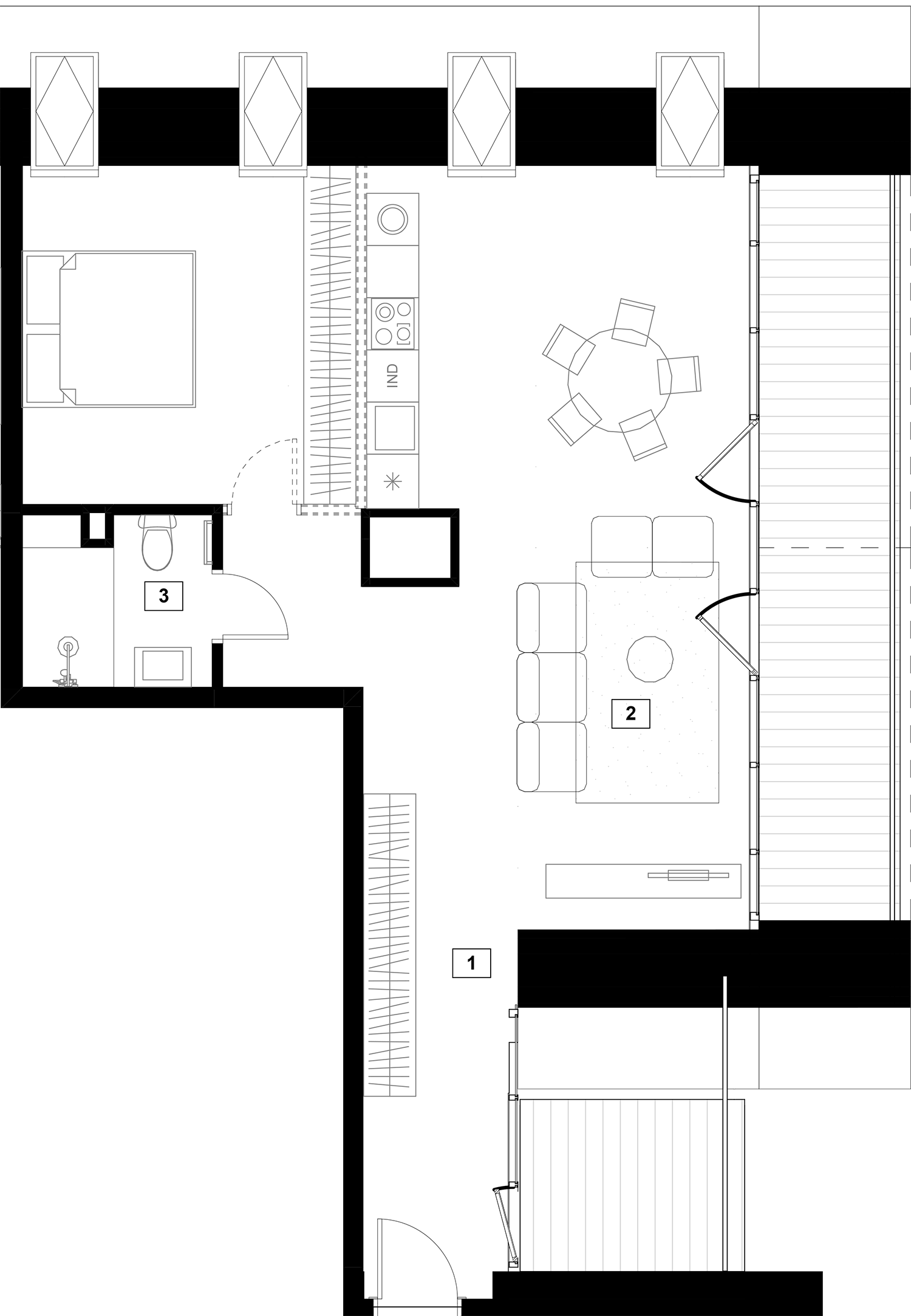
Butai parduodami be pertvarų. Pateikiamas galimo įrengimo pavyzdys.


3D plane pateikiamas galimo įrengimo pavyzdys ir yra tik informacinio pobūdžio

Butai parduodami be pertvarų. Pateikiamas galimo įrengimo pavyzdys.
| 1 | Koridorius | 7.95 m² |
| 2 | Svetainė/valgomasis/virtuvė | 49.64 m² |
| 3 | San. mazgas | 4.17 m² |
Dalintis:
A402
Vanagėlio g. 11-58
Aukštas
4
Kambariai
2
Plotas
62.14 m²
Grindų plotas
81.80 m²
Kryptis
r/š
Lubų aukštis
3.35 - 5.10 m
Terasa
17.28 + 5.17 m²
Laisvas
676 145 €
Dalintis: