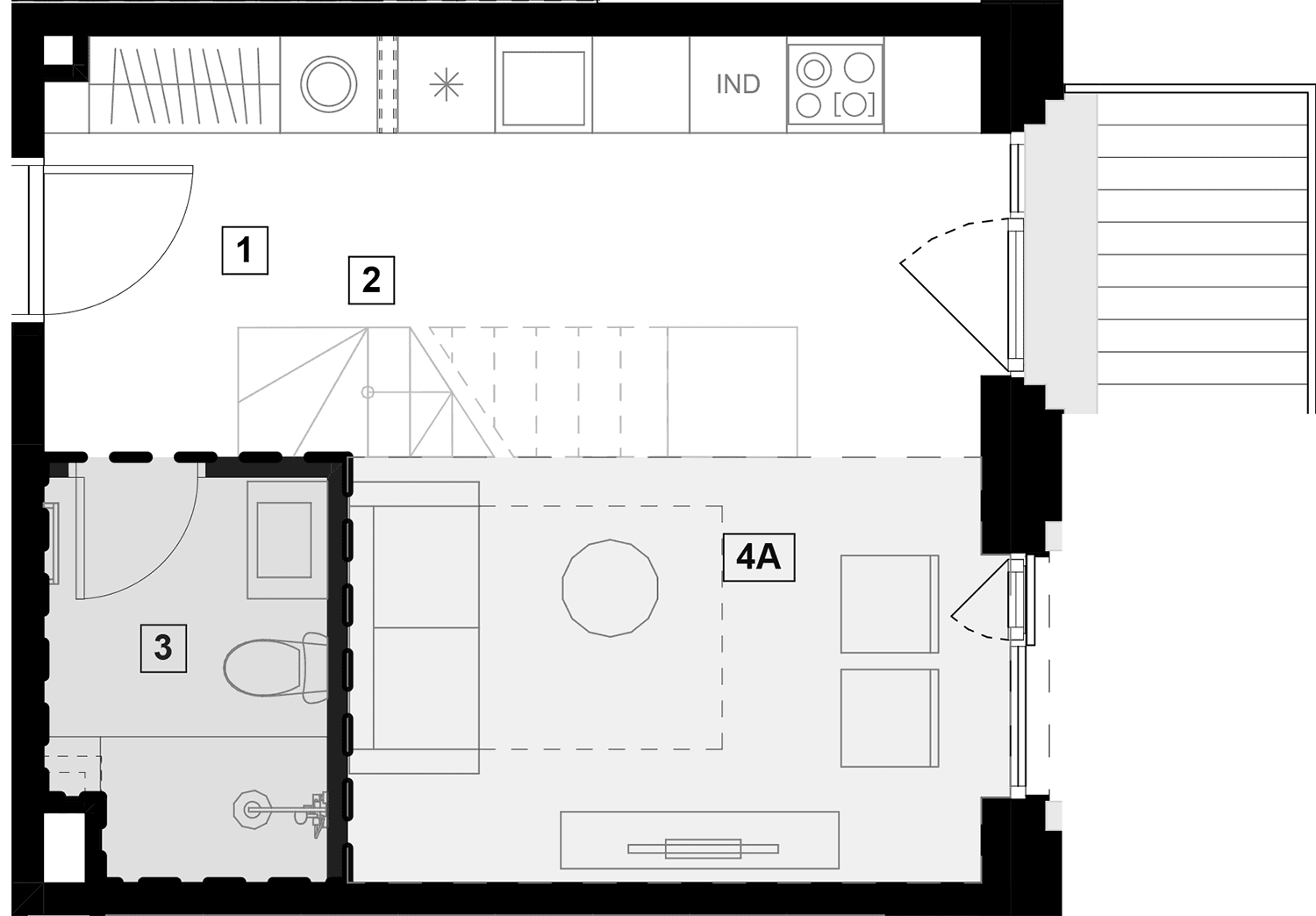
Butai parduodami be pertvarų. Pateikiamas galimo įrengimo pavyzdys.


3D plane pateikiamas galimo įrengimo pavyzdys ir yra tik informacinio pobūdžio

Butai parduodami be pertvarų. Pateikiamas galimo įrengimo pavyzdys.
| 1 | Holas | 4.15 m² |
| 2 | Svetainė/valgomasis/virtuvė | 21.63 m² |
| 3 | San. mazgas | 4.19 m² |
| 4A | Antresolė | 15.27 m² |
Dalintis:
A209
Vanagėlio g. 11-30
Aukštas
2
Kambariai
2
Plotas
45.39 m²
Kryptis
R
Lubų aukštis
4.43 m
Laisvas
313 191 €
Dalintis: